
事業用物件詳細情報一覧に戻る
| 所在地 | 茨城県牛久市中央1丁目5-2 | ||
|---|---|---|---|
| 沿線・駅 | JR常磐線牛久駅 徒歩14分 | ||
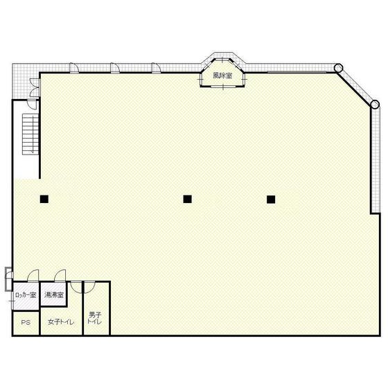
| 賃貸面積 | 211.15m²(約64坪) | ||
| 所在階 | 1階/2階建 | 築年月 | 1986年01月 |
| 賃料(共益費) | 55万円(-) | 駐車場 | 敷地内有 / 7台 / 無料 |
| 敷金(保証金) | 250万円 | 礼金 | 55万円 |
| 仲介手数料 | 55万円(税込) | ||
ハナミズキ通り飲食店可能物件♪

桂不動産株式会社 竜ケ崎支店
| 賃貸面積 | 211.15m²(約64坪) | ||
|---|---|---|---|
| 所在階 | 1階/2階建 | 築年月 | 1986年01月 |
| 賃料(共益費) | 55万円(-) | 駐車場 | 敷地内有 / 7台 / 無料 |
| 敷金(保証金) | 250万円 | 礼金 | 55万円 |
| 仲介手数料 | 55万円(税込) | ||
| 物件種別 | 店舗 | ||
|---|---|---|---|
| 物件名/部屋番号 | エリートビル 001号室 | ||
| 所在地 | 茨城県牛久市中央1丁目5-2 | ||
| 小学校区 | 牛久市立神谷小学校 | 中学校区 | 牛久市立牛久第一中学校 |
| 構造 | 鉄骨造 | 所在階/階数 | 1階/2階建 |
|---|---|---|---|
| 築年月 | 1986年01月(築40年4ヶ月) | 総戸数 | 6戸 |
| 賃貸面積 | 211.15m²(約64坪) | 主要採光面 | |
| 駐車場 | 敷地内有 / 7台 / 無料 | ||
| 設備 | 電気,プロパンガス,都市ガス,上水(公営),排水(有り),トイレ(水洗),エアコン | ||
|---|---|---|---|
| こだわり条件 | |||
| 現況 | 空室 | 取引態様 | 仲介 |
| 契約形態 | 普通借家 | 引渡時期 | 即契約開始可能 |
| 契約期間 | 3年 | ||
| 更新費用 |
更新料:275,000円 更新事務手数料:275,000円 |
||
| 連帯保証人 | 保証会社加入が必須となります。物件によっては連帯保証人が必要となります。 | ||
| 店舗総合 保険料等 |
要 | ||
| 交通 | JR常磐線牛久駅 徒歩14分 |
|---|---|
| セールスポイント | ハナミズキ通り飲食店可能物件♪ |
| 備考 | 保証料:初回 賃料総額の120%、以降賃料総額10%/年、口座振替手数料:440円(税込) |
| 情報登録日 | 2026年05月23日 |
| 有効期限 | 2026年06月06日 ※次回更新日は前回更新日より14日以内 |
| 取扱店舗 |
会社名:桂不動産株式会社 竜ケ崎支店 TEL:0297-60-2870 受付時間:9:30 ~ 18:00 定休日:毎週水曜日及びゴールデンウィーク、お盆、年末年始 住所:〒301-0001 茨城県龍ヶ崎市久保台1丁目8番1 |
||
|---|---|---|---|
お電話でのお問い合わせはこちら
0297-60-2870
【受付時間】 9:30 ~ 18:00
【定休日】毎週水曜日及びゴールデンウィーク、お盆、年末年始
※お電話でお問い合わせの際はお手数ではございますが、「ホームページを見た」とお伝えください。
【物件コード番号 i-SP:004307】
219 エリートビル 001号室
賃料:7.5万円
間取り
2LDK
63.5m²
賃料:38.5万円
面積
342.47m²
賃料:7.535万円
面積
45.54m²
賃料:16.5401万円
面積
58.49m²
賃料:11万円
面積
69.82m²
賃料:21.318万円
面積
106.78m²
賃料:8.8万円
面積
33.06m²
賃料:5.5万円
間取り
2LDK
52.65m²
賃料:27.5万円
面積
214.7m²
賃料:11万円
面積
115.1m²
賃料:5.83万円
面積
35.1m²
賃料:11.495万円
面積
69.3m²
賃料:15.51万円
面積
77.69m²
賃料:13.2万円
面積
82.5m²
賃料:27.5万円
面積
132.23m²