
賃貸物件詳細情報一覧に戻る
所在地 | 茨城県守谷市松ケ丘1丁目32-7 | ||
---|---|---|---|
沿線・駅 | つくばエクスプレス守谷駅 徒歩13分 | ||
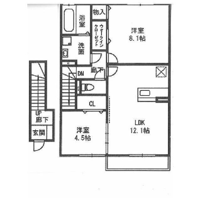
間取り | 2LDK | 専有面積 | 59.49m² |
所在階 | 1階/2階建 | 築年月 | 2009年12月 |
賃料(共益費) | 9万円(5,000円) | 駐車場 | 敷地内有 / 1台 / 6,600円 |
敷金(保証金) | 9万円 | 礼金 | 9万円 |
仲介手数料 | 9.9万円(税込) |
守谷駅徒歩15分!イオンタウンまで徒歩圏内で買い物に便利です!
桂不動産株式会社 守谷支店
間取り | 2LDK | 専有面積 | 59.49m² |
---|---|---|---|
所在階 | 1階/2階建 | 築年月 | 2009年12月 |
賃料(共益費) | 9万円(5,000円) | 駐車場 | 敷地内有 / 1台 / 6,600円 |
敷金(保証金) | 9万円 | 礼金 | 9万円 |
仲介手数料 | 9.9万円(税込) |
物件種別 | アパート | ||
---|---|---|---|
物件名/部屋番号 | アモールII A-101号室 | ||
所在地 | 茨城県守谷市松ケ丘1丁目32-7 | ||
小学校区 | 守谷市立松ケ丘小学校(640m) | 中学校区 | 守谷市立けやき台中学校(640m) |
構造 | 軽量鉄骨造 | 所在階/階数 | 1階/2階建 |
---|---|---|---|
築年月 | 2009年12月(築15年9ヶ月) | 総戸数 | 4戸 |
間取り | 2LDK | 専有面積 | 59.49m² |
間取り詳細 | LDK12.1,洋室6.1,洋室6.1 | ||
主要採光面 | 南 | ||
駐車場 | 敷地内有 / 1台 / 6,600円 |
設備 | プロパンガス,上水(公営),下水(公営),敷地内ゴミ置場,駐輪場,温水洗浄便座,バス・トイレ別,洗面所独立,洗髪洗面化粧台,浴室乾燥機,シャワー,システムキッチン,給湯(ガス),追焚き,室内洗濯置場,TVモニタ付インターホン,ウォークインクローゼット,エアコン,室内物干し,バルコニー,フローリング | ||
---|---|---|---|
こだわり条件 | |||
現況 | 空室 | 取引態様 | 仲介 |
契約形態 | 普通借家 | 引渡時期 | 要確認 |
契約期間 | 2年 | ||
更新費用 |
更新料:90,000円 更新事務手数料:なし |
||
連帯保証人 | 保証会社加入が必須となります。物件によっては連帯保証人が必要となります。 | ||
火災保険 | 要 |
交通 | つくばエクスプレス守谷駅 徒歩13分 |
---|---|
セールスポイント | 守谷駅徒歩15分!イオンタウンまで徒歩圏内で買い物に便利です! |
備考 | 保証会社利用必須 エポスカード初回保証料月額総家賃の30%・月次保証料1.0% 最低保証料15,000円。保険要加入2年契約 18,000円 〜。退去時クリーニング費用66,000円(税込)。カギ交換費用契約時22,000円(税込)。リブネスあんしんサポート月額 880円(税込)。6ヶ月未満の解約は違約金あり(賃料・共益費1ヶ月分)。駐車場敷金・手数料各1カ月、駐車場仲介手数料有。更新料1ヶ月分。 |
情報登録日 | 2025年10月07日 |
有効期限 | 2025年10月21日 ※次回更新日は前回更新日より14日以内 |
取扱店舗 |
会社名:桂不動産株式会社 守谷支店 TEL:0297-21-1930 受付時間:9:30 ~ 18:00 定休日:毎週水曜日及びゴールデンウィーク、お盆、年末年始 住所:〒302-0109 茨城県守谷市本町249番地6 |
---|
お電話でのお問い合わせはこちら
0297-21-1930
【受付時間】 9:30 ~ 18:00
【定休日】毎週水曜日及びゴールデンウィーク、お盆、年末年始
※お電話でお問い合わせの際はお手数ではございますが、「ホームページを見た」とお伝えください。
【物件コード番号 i-SP:095413】
224 アモールII A-101号室
賃料:9.2万円
間取り
2LDK
61.14m²
賃料:8.5万円
間取り
2LDK
62.83m²
賃料:11.2万円
面積
54m²
賃料:5,000円
空き
1台
賃料:5万円
間取り
1LDK
40.3m²
賃料:11.2万円
面積
54m²
賃料:5万円
間取り
1LDK
40.3m²
賃料:9万円
間取り
2LDK
59.58m²
賃料:8.2万円
間取り
1LDK
48.57m²
賃料:5.1万円
間取り
1K
28.4m²
賃料:8.4万円
間取り
1LDK
48.79m²
賃料:9.2万円
間取り
2LDK
61.14m²
賃料:9.5万円
間取り
2LDK
69.48m²
賃料:5.2万円
間取り
1DK
34.79m²