店舗・事務所
牛久駅前ビル 102号室
| 所在地 | |
|---|---|
| 茨城県牛久市中央5丁目20-11 | |
| 沿線・駅 | |
| JR常磐線牛久駅 徒歩1分 | |
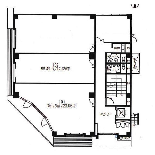
| 賃貸面積 | |
| 58.49m²(約18坪) | |
| 所在階 | 築年月 |
| 1階/6階建 | 1989年12月 |
| 賃料(共益費) | 駐車場 |
| 16.5401万円(-) | 駐車場なし |
| 敷金(保証金) | 礼金 |
| 45.1095万円 | - |
| 仲介手数料 | |
| 16.5401万円(税込) | |
担当者コメント
牛久駅東口ロータリーに隣接♪徒歩1分

担当者
桂不動産株式会社 牛久支店
あなたの街の住まいのコンサルタント

| 所在地 | |
|---|---|
| 茨城県牛久市中央5丁目20-11 | |
| 沿線・駅 | |
| JR常磐線牛久駅 徒歩1分 | |
| 賃貸面積 | |
| 58.49m²(約18坪) | |
| 所在階 | 築年月 |
| 1階/6階建 | 1989年12月 |
| 賃料(共益費) | 駐車場 |
| 16.5401万円(-) | 駐車場なし |
| 敷金(保証金) | 礼金 |
| 45.1095万円 | - |
| 仲介手数料 | |
| 16.5401万円(税込) | |
牛久駅東口ロータリーに隣接♪徒歩1分

担当者
桂不動産株式会社 牛久支店
| 物件種別 |
|---|
| 店舗・事務所 |
| 物件名/部屋番号 |
| 牛久駅前ビル 102号室 |
| 所在地 |
| 茨城県牛久市中央5丁目20-11 (マップ) |
| 構造 | 所在階/階数 |
|---|---|
| SRC | 1階/6階建 |
| 築年月 | 総戸数 |
| 1989年12月 (築36年2ヶ月) |
12戸 |
| 賃貸面積 | 58.49m²(約18坪) |
| 主要採光面 | |
| 駐車場 | |
| 駐車場なし | |
| 設備 | |
|---|---|
| 電気,上水(公営),下水(公営),エレベータ,共同トイレ,電話設置可 | |
| 現況 | 取引態様 |
| 空室 | 仲介 |
| 契約形態 | 引渡時期 |
| 普通借家 | 要確認 |
| 契約期間 | |
| 2年 | |
| 更新費用 | |
| 別途お問合せください。 | |
| 連帯保証人 | |
| 保証会社加入が必須となります。物件によっては連帯保証人が必要となります。 | |
| 店舗総合保険料等 | |
| 要 | |
| 交通 |
|---|
| JR常磐線牛久駅 徒歩1分 |
| セールスポイント |
| 牛久駅東口ロータリーに隣接♪徒歩1分 |
| 情報登録日 |
| 2026年02月03日 |
| 有効期限 |
| 2026年02月17日 ※次回更新日は前回更新日より14日以内 |
| 取扱店舗 |
|---|
|
会社名:桂不動産株式会社 牛久支店 TEL:029-830-7510 受付時間:9:30 ~ 18:00 定休日:毎週水曜日及びゴールデンウィーク、お盆、年末年始 住所:〒300-1233 茨城県牛久市栄町5丁目51 |
お電話でのお問い合わせはこちら
219 牛久駅前ビル 102号室
【物件No.】i-SP:092067
桂不動産 桂不動産株式会社 牛久支店
【受付時間】 9:30 ~ 18:00 【定休日】毎週水曜日及びゴールデンウィーク、お盆、年末年始
※お電話でお問い合わせの際はお手数ではございますが、「ホームページを見た」とお伝えください。
賃料:6.7万円
間取り
1K
28.24m²
賃料:22万円
面積
68.35m²
賃料:10.3004万円
面積
77.39m²
賃料:11万円
面積
115.1m²
賃料:7万円
間取り
2LDK
55.89m²
賃料:8.8万円
面積
33.06m²
賃料:6.5万円
間取り
2LDK
66.44m²
賃料:27.5万円
面積
214.7m²
賃料:5.5万円
間取り
2LDK
52.65m²
賃料:8.8万円
面積
115.1m²
賃料:41.8万円
面積
342.47m²
賃料:19.3875万円
面積
116.54m²
賃料:11.5万円
間取り
3LDK
65.44m²
賃料:7万円
間取り
2LDK
55.89m²
賃料:30.8万円
面積
132.23m²