
事業用物件詳細情報一覧に戻る
| 所在地 | 茨城県牛久市中央5丁目14-12 | ||
|---|---|---|---|
| 沿線・駅 | JR常磐線牛久駅 徒歩5分 | ||
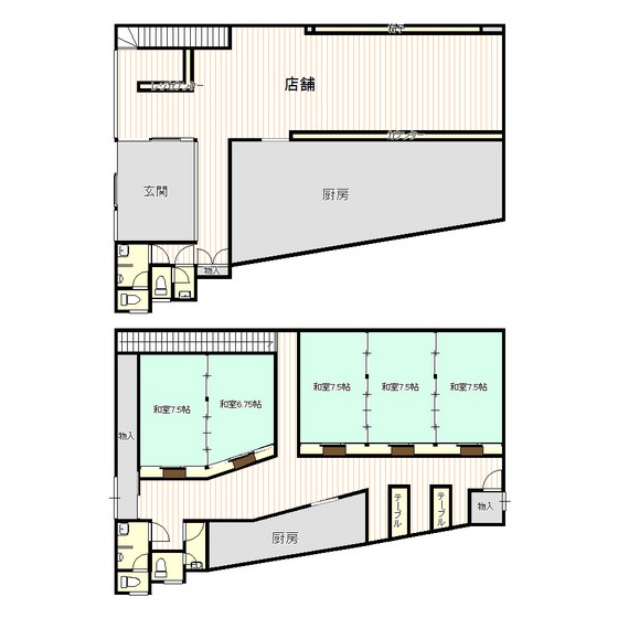
| 賃貸面積 | 273.1m²(約83坪) | ||
| 所在階 | 2階/2階建 | 築年月 | 1997年07月 |
| 賃料(共益費) | 38.5万円(-) | 駐車場 | 駐車場なし |
| 敷金(保証金) | 105万円 | 礼金 | 77万円 |
| 仲介手数料 | 38.5万円(税込) | ||
| 賃貸面積 | 273.1m²(約83坪) | ||
|---|---|---|---|
| 所在階 | 2階/2階建 | 築年月 | 1997年07月 |
| 賃料(共益費) | 38.5万円(-) | 駐車場 | 駐車場なし |
| 敷金(保証金) | 105万円 | 礼金 | 77万円 |
| 仲介手数料 | 38.5万円(税込) | ||
| 物件種別 | 店舗・事務所 | ||
|---|---|---|---|
| 物件名/部屋番号 | 中央線路沿いテナント | ||
| 所在地 | 茨城県牛久市中央5丁目14-12 | ||
| 構造 | 鉄骨造 | 所在階/階数 | 2階/2階建 |
|---|---|---|---|
| 築年月 | 1997年07月(築28年9ヶ月) | 総戸数 | 1戸 |
| 賃貸面積 | 273.1m²(約83坪) | 主要採光面 | 北 |
| 駐車場 | 駐車場なし | ||
| 設備 | 電気,プロパンガス,上水(公営),排水(浄化槽),トイレ(水洗),ガスコンロ設置可,給湯(ガス),電話設置可 | ||
|---|---|---|---|
| こだわり条件 | |||
| 現況 | 空室 | 取引態様 | 仲介 |
| 契約形態 | 普通借家 | 引渡時期 | 即契約開始可能 |
| 契約期間 | 3年 | ||
| 更新費用 |
更新料:192,500円 更新事務手数料:181,500円 |
||
| 連帯保証人 | 保証会社加入が必須となります。物件によっては連帯保証人が必要となります。 | ||
| 店舗総合 保険料等 |
要 | ||
| 交通 | JR常磐線牛久駅 徒歩5分 |
|---|---|
| セールスポイント | |
| 備考 | 飲食店居抜き |
| 情報登録日 | 2026年04月09日 |
| 有効期限 | 2026年04月23日 ※次回更新日は前回更新日より14日以内 |
| 取扱店舗 |
会社名:桂不動産株式会社 牛久支店 TEL:029-830-7510 受付時間:9:30 ~ 18:00 定休日:毎週水曜日及びゴールデンウィーク、お盆、年末年始 住所:〒300-1232 茨城県牛久市上柏田4-1-10 |
||
|---|---|---|---|
お電話でのお問い合わせはこちら
029-830-7510
【受付時間】 9:30 ~ 18:00
【定休日】毎週水曜日及びゴールデンウィーク、お盆、年末年始
※お電話でお問い合わせの際はお手数ではございますが、「ホームページを見た」とお伝えください。
【物件コード番号 i-SP:017701】
219 中央線路沿いテナント
賃料:16.5401万円
面積
58.49m²
賃料:19.3875万円
面積
116.54m²
賃料:11万円
面積
115.1m²
賃料:15.51万円
面積
77.69m²
賃料:27.5万円
面積
132.23m²
賃料:21.5611万円
面積
76.25m²
賃料:7.7万円
面積
40m²
賃料:66万円
面積
211.15m²
賃料:11万円
面積
69.82m²
賃料:11.495万円
面積
69.3m²
賃料:22万円
面積
68.35m²
賃料:7.535万円
面積
45.54m²
賃料:4.7万円
間取り
1K
33.18m²
賃料:8.8万円
面積
115.1m²
賃料:8.8万円
面積
33.06m²